517 Red Eyed Vireo Court, Magnolia, TX, 77354
Save
Ask
Tour
Hide
$443,900
5 Days On Site
517 Red Eyed Vireo CourtMagnolia, TX 77354
For Sale|Single Family Residence|Active
4
Beds
3
Total Baths
3
Full Baths
2,188
SqFt
$203
/SqFt
2025
Built
Subdivision:
Audubon
County:
Montgomery
Call Now: 281-435-5422
Is this the listing for you? We can help make it yours.
281-435-5422



Save
Ask
Tour
Hide
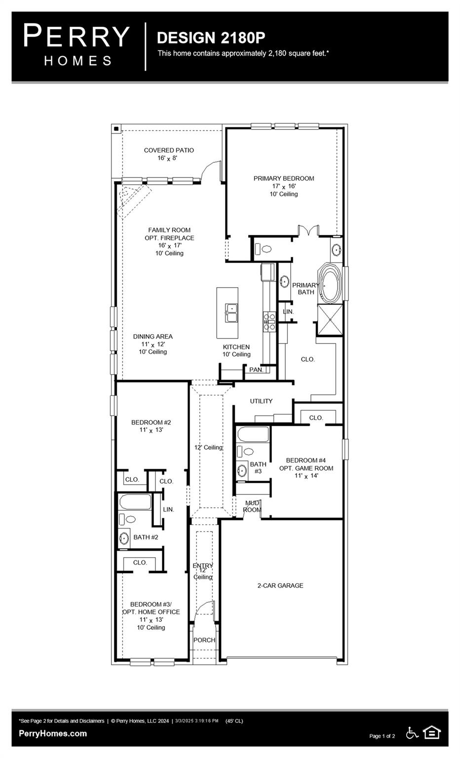
Welcoming entry flows through to the family room, dining area and kitchen. Open family room with three large windows. Kitchen features an island with built-in seating space, 5-burner gas cooktop and a corner walk-in pantry. Private primary suite with three large widows. Primary bathroom features a French door entry, dual vanities, garden tub, separate glass enclosed shower, a linen closet and large walk-in closet. Secondary bedrooms with walk-in closets, a utility room and a Hollywood bathroom complete this spacious design. Covered backyard patio. Mud room just off the two-car garage.
Save
Ask
Tour
Hide
Listing Snapshot
Price
$443,900
Days On Site
5 Days
Bedrooms
4
Inside Area (SqFt)
2,188 sqft
Total Baths
3
Full Baths
3
Partial Baths
N/A
Lot Size
0.1409 Acres
Year Built
2025
MLS® Number
15249224
Status
Active
Property Tax
N/A
HOA/Condo/Coop Fees
$154.17 monthly
Sq Ft Source
N/A
Friends & Family
Recent Activity
5 days ago | Listing updated with changes from the MLS® | |
5 days ago | Listing first seen on site |
General Features
Acres
0.1409
Attached Garage
Yes
Direction Faces
South
Disclosures
MudOther Disclosures
Foundation
Slab
Garage
Yes
Garage Spaces
2
Green Energy Efficient
ThermostatLighting
Parking
Attached
Parking Spaces
2
Property Condition
Under Construction
Property Sub Type
Single Family Residence
Security
Prewired
Sewer
Public Sewer
SqFt Total
2188
Style
Traditional
Interior Features
Appliances
ENERGY STAR Qualified AppliancesDisposalOvenMicrowaveGas CooktopDishwasher
Cooling
Ceiling Fan(s)Electric
Flooring
CarpetTile
Heating
Natural Gas
Interior
Walk-In Closet(s)Breakfast BarKitchen IslandPantryEntrance FoyerMaster DownstairsDouble VanitySoaking Tub
Laundry Features
Electric Dryer HookupWasher Hookup
Window Features
Low Emissivity Windows
Save
Ask
Tour
Hide
Exterior Features
Construction Details
BrickStone
Fencing
Back Yard
Lot Features
Back YardSubdivided
Patio And Porch
Covered
Roof
Composition
Windows/Doors
Low Emissivity Windows
Community Features
Association Amenities
ParkPoolTrail(s)
Association Dues
1850
Financing Terms Available
CashConventionalFHAVA Loan
HOA Fee Frequency
Annually
MLS Area
15
Roads
Concrete
School District
36 - Magnolia
Schools
School District
36 - Magnolia
Elementary School
Audubon Elementary
Middle School
Magnolia Parkway Junior High
High School
Magnolia West High School
Listing courtesy of Perry Homes Realty, LLC phbroker@perryhomes.com
IDX information is provided exclusively for consumers’ personal, non-commercial use. It may not be used for any purpose other than to identify prospective properties consumers may be interested in purchasing. This data is deemed reliable but is not guaranteed accurate by the MLS.
Data provided by HAR.com © 2025. All information provided should be independently verified.
IDX information is provided exclusively for consumers’ personal, non-commercial use. It may not be used for any purpose other than to identify prospective properties consumers may be interested in purchasing. This data is deemed reliable but is not guaranteed accurate by the MLS.
Data provided by HAR.com © 2025. All information provided should be independently verified.
Neighborhood & Commute
Source: Walkscore
Disclosure: Community information and market data powered by Constellation Data Labs. Information is deemed reliable but not guaranteed.
Save
Ask
Tour
Hide
Did you know? You can invite friends and family to your search. They can join your search, rate and discuss listings with you.